工程施工朋友们,夏日炎炎大家还好吗?小雷总之即将被晒裂了,提不起来干劲来呀!以前大家讲已过I型人防工程施工、模版工程施工、铝合金模板工程施工和碧桂圆SSFG施工技术,许多小伙伴们留言板留言说能否做一期当场设备安装工程,OK从这一期刚开始大家就一起掌握下当场的电气专业工程施工,先从JDG管的安裝刚开始谈起!

电气JDG管施工的作业条件
(1)、土建完成顶板、梁支模;
(2)、梁钢筋绑扎完毕;
(3)、现浇板底层钢筋绑扎完毕,上层钢筋绑扎前。


施工时对每个电气设备及管路的安装做出详细的施工图以便安装的统一性

JDG管材料要求
(1) 外观检查钢管壁厚均匀、焊缝均匀、无劈裂、毛刺砂眼、棱刺和凹扁等缺陷;
(2) 螺纹管接头、直管接头、弯管接头外形完好、丝扣清晰。无翘曲变形等缺陷;
(3) 铁制灯头盒、开关盒等的金属板厚度必须符合厂家提供的技术指标要求。

操作工艺包括管路与管路的连接和管路与盒的连接两种情况:
·(1)、管路与管路的连接,直线管路采用配套的直管接头连接,管的接口应在直管接头的中心位置,即将接头插接到位。根据管路要求采用90°直角弯管接头时,管路要插人直角弯管的承插口处,并插接到位。然后拧紧螺母。
·(2)、管路与盒的连接,采用配套的爪型螺纹管接头,接头的一端按上面管接头的连接方法与管路连接,另一端使用专用扳手与盒锁紧,爪型根母护口要完好,以保证良好的接地电气通路,且不必焊跨接地线。

开关插座盒在墙体内预埋的时候应拉线统一盒体标高

墙体内预埋的插座盒,如墙两侧同一位置均有插座时应预先控制好2插座盒位置避免墙体砌筑完成时插座盒过于突出墙体

当预埋管路破坏砌筑墙体的时候则需对墙体填充水泥


管道穿钢筋砼屋面构造

导管到电缆桥架安装示意(90°固定引入)

导管到电缆桥架安装示意图(120°可变引入)



石膏板墙内所有穿线管沿长度方向每隔1m单独设立支撑,固定在主龙骨上。

所有穿墙工艺管道均加设套管,并进行加强。

导管穿防火墙示意图

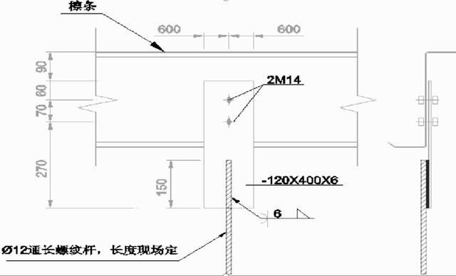
檩条电缆桥架/导管吊挂点详图

转载请注明来自广东江南娱乐客户端官网,本文地址://m.ndytng.com/cpzs/xgzs/7702.html 除非注明,广东江南娱乐客户端官网文章均为原创,转载请注明出处和链接!





